ŁAZIENKA KOWALE / Gdańsk

 

Projekt: 2015
Realizacja: 2015

 

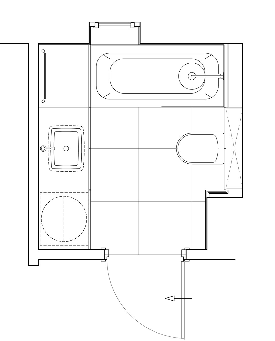
Łazienka w pod gdańskich kowalach.

Łazienka o powierzchni 5,5 m2.
Wymogiem inwestorów było umieszczenie wanny i pralki w jednym pomieszczeniu.
Dzięki zabudowie udało się połączyć wymagania właścicieli i wygodę użytkowania.