Dom D_02 a

Koszt projektu: 3900 zł

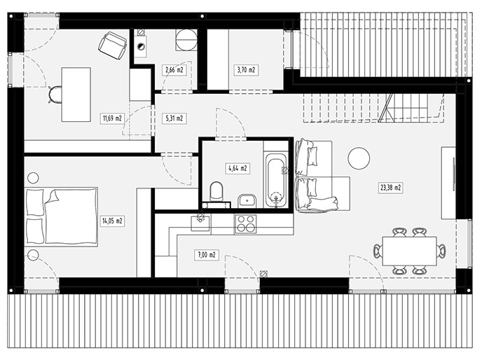
0.1. Wiatrołap
0.2. Hol
0.3. Łazienka
0.4. Salon
0.5. Kuchnia
0.6. Sypialnia
0.7. Gabinet
0.8. Kotłownia / Pralnia

 

 

3,77 m2

5,31 m2

4,64 m2

23,38 m2

7,00 m2

14,05 m2

11,69 m2

2,66 m2

Koszt budowy do stanu deweloperskiego: 265 600 zł

 

przyjęto szacunkowe średnie stawki na bazie wyliczeń  www.kb.pl

na II kwartał 2019 roku

Technologia i konstrukcja:

- ściany murowane (Porotherm)
- strop żelbetowy monolityczny

- styropian

- ścianka kolankowa
- dach wielospadowy
(więźba dachowa + blacha)

- tylko ściany zewnętrzne są nośnymi

(wnętrze możesz dopasować do swoich upodobań)

 

25 cm
18 cm
20 cm
128 cm
44 st.

Powierzchnie i wymiary:
- powierzchnia zabudowy
- powierzchnia całkowita
- powierzchnia użytkowa
- powierzchnia kotłowni
- kubatura
- wysokość budynku
- powierzchnia dachu
- min. wymiary działki
- 2 kondygnacje
(poddasze użytkowe)

Termoizolacyjność:

U ściany
U dachu
U podłogi

 

 

0,134 W/(m2*K)

0,130 W/(m2*K)
0,122 W/(m2*K)

Projekt zgodny z najnowszymi

Warunkami Technicznymi i wymogami termoizolacyjności na rok 2021.

101,66 m2
242,16 m2
124,68 m2
2,66 m2
608,43 m3
8,26 m
134,59 m2
20,95 x 15,85 m

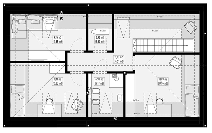
1.1. Hol

1.2. Sypialnia

1.3. Łazienka
1.4. Sypialnia
1.5. Pokój kinowy
1.6. Pom. gosp. / Suszarnia

 

11,05 m2

13,09 m2
4,98 m2
11,11 m2
9,35 m2

2,72 m2