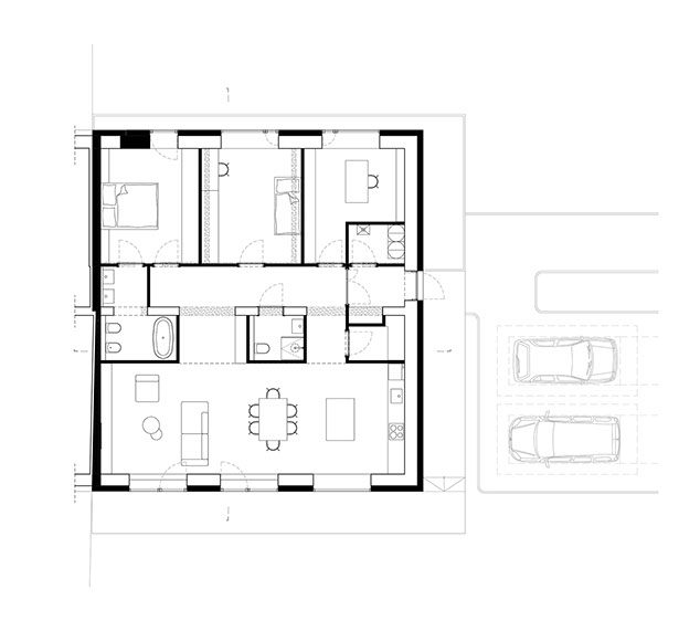
DOM JEDNORODZINNY BLIŹNIACZY w Tczewskich Łąkach Projekt: 2018/2019
Realizacja: niezrealizowany Projekt przebudowy domu jednorodzinnego w zabudowie bliźniaczej w miejscowości Tczewskie Łąki. Działka wraz z budynkiem została podzielona przez właścicieli na osobne nieruchomości a inwestorzy swoją cześć chcieli przekształcić z pustostanu w dom. Budynek z przełomu lat 60/70 XX w.