DOM JEDNORODZINNY w Jodłownie

Projekt: 2021
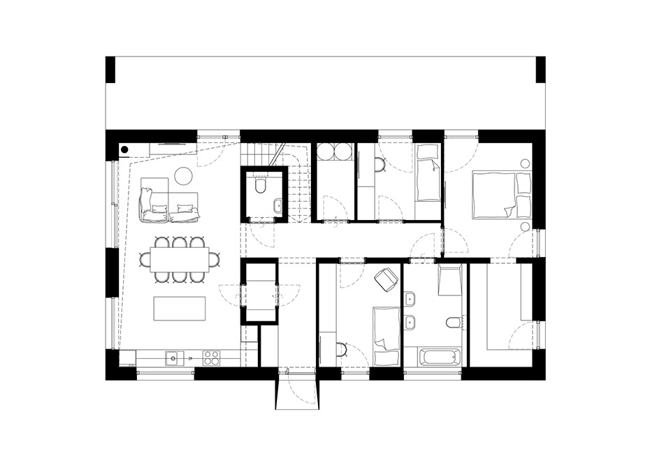
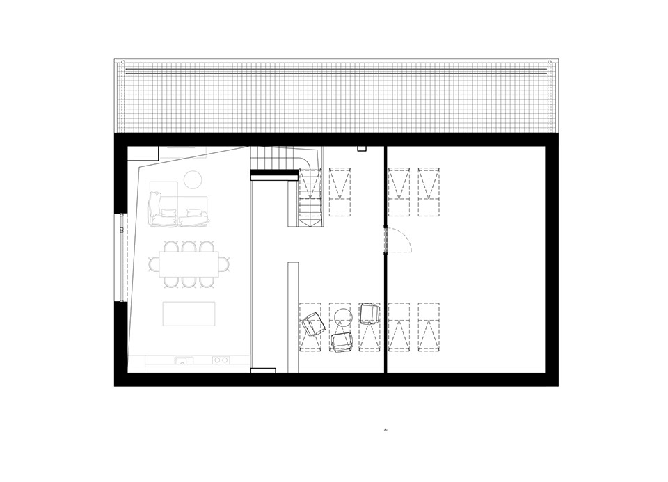
Realizacja: 2022-..... Projekt domu jednorodzinnego w kaszubskim Jodłownie.

Głównym założeniem projektowym było wykorzystanie spadku działki w kierunku północnym przy zachowaniu korzyści płynących z "południowego" nasłonecznienia.