DOM POD POZNANIEM / Konkurs Builder'a

Projekt: 2014

 

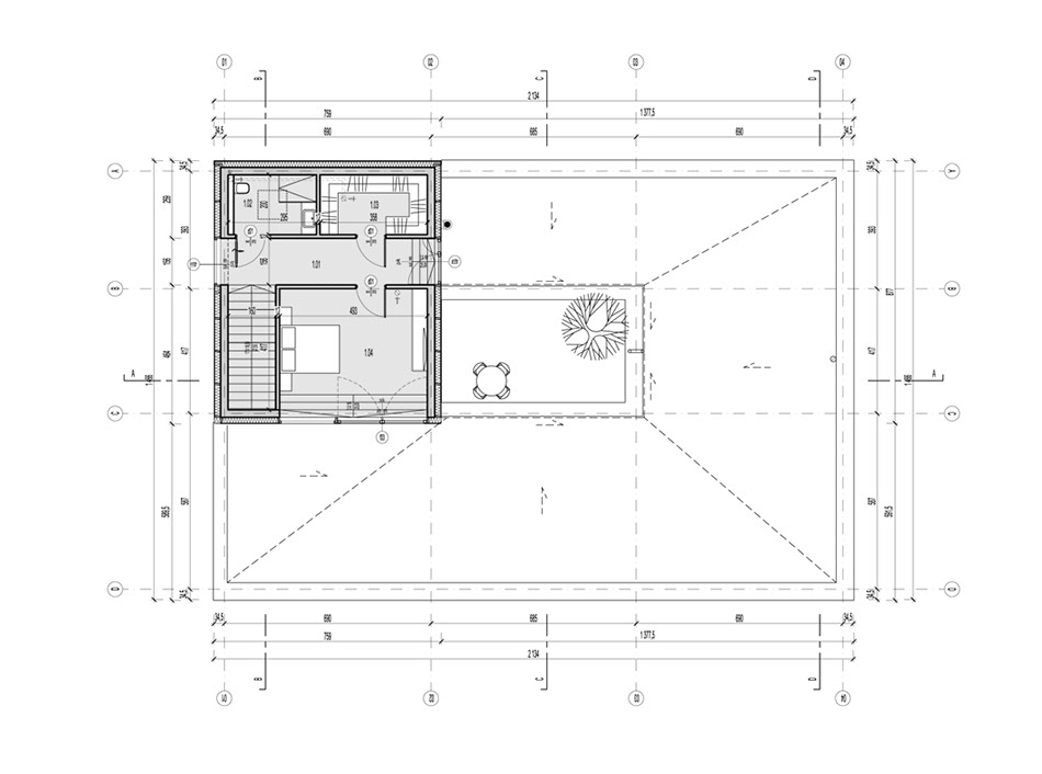
Dom jednorodzinny w Pokrzywnie pod Poznaniem.

Budynek jednorodzinny z wewnętrznym patio oraz dachem z zielenią ekstensywną niską, pozwalającą po niej chodzić.
Ma być odpowiedzią na zapotrzebowanie dzisiejszej grupy odbiorców, którzy pragną wybudować swój dom, który będzie się wyróżniał z pośród chaosu polskiej przestrzeni.