DOMY DWULOKALOWE w Jantarze
Projekt: 2021
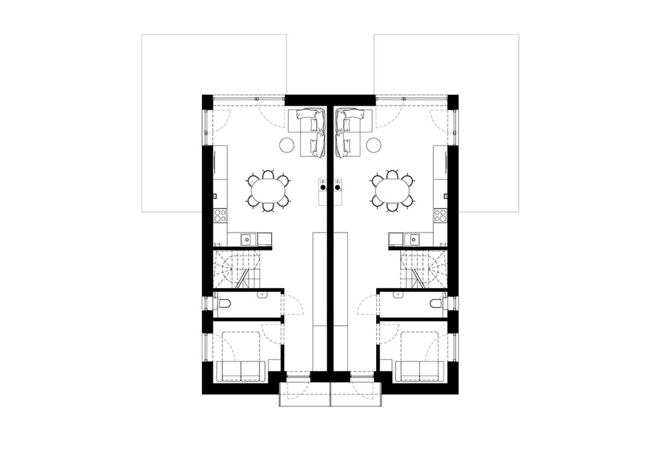
Realizacja: 2022-..... Projekt osiedla domów dwulokalowych w nadmorskim Jantarze.

Domy dwulokalowe z przeznaczeniem wakacyjnym, obiekty o prostej bryle mieszczące dwa lokale mieszkalne. Założenie, które docelowo ma składać się z 12 domów, tworząc swoistą kolonię.