DOMY LETNISKOWE w Kamierowskich Piecach

Projekt: 2020
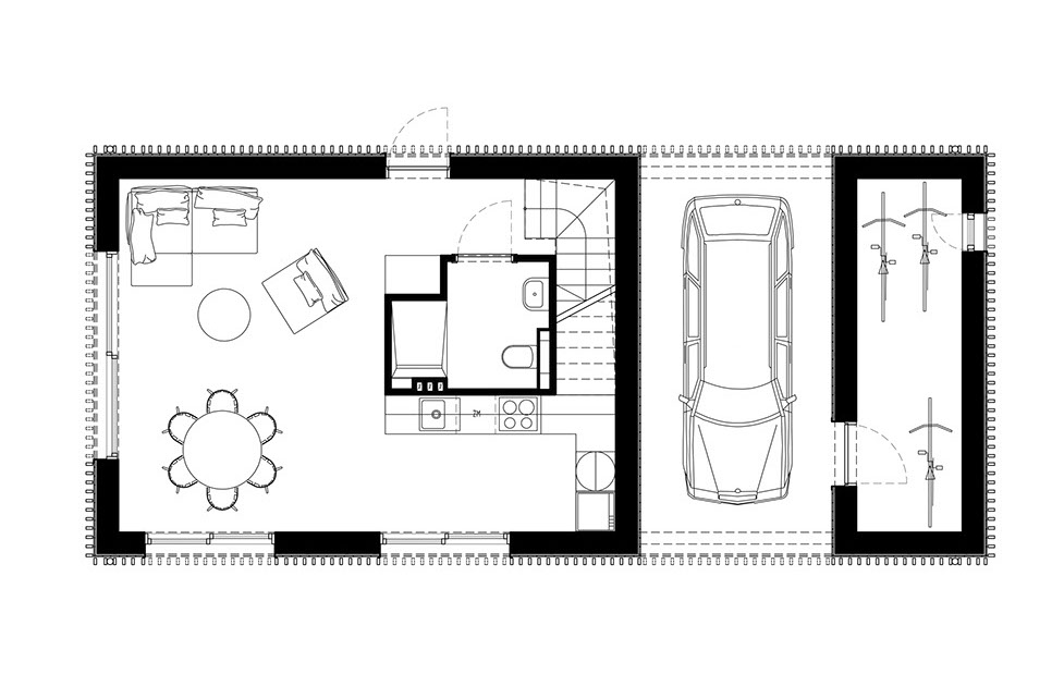
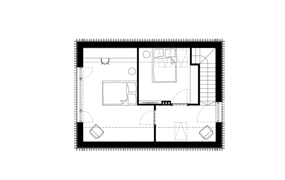
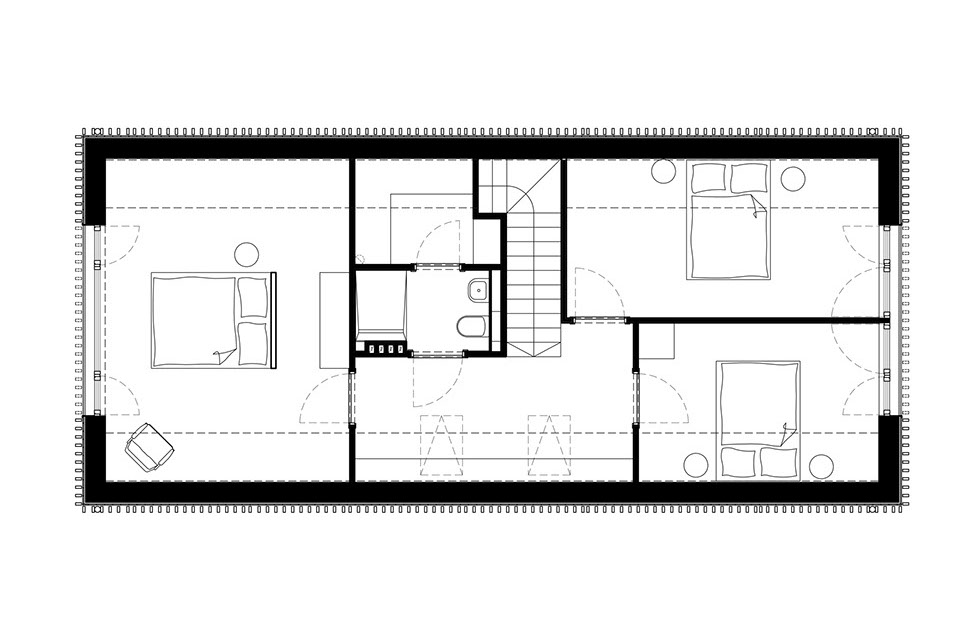
Realizacja: 2022 Projekt dwóch domów wakacyjnych: większy – Typ A i mniejszy – Typ B
Elewacja wykonana jest z drewna typu shou sugi ban (drewno opalane) wraz z deskami ustawionymi na sztorc, tworzącymi efekt pionowych tralek. Układ ten nawiązuje do długich pni sosen, które można zauważyć w lasach Borów Tucholskich i Kociewia. Forma obiektów i ciemna kolorystyka przywodzi na myśl tradycyjną architekturę regionu.