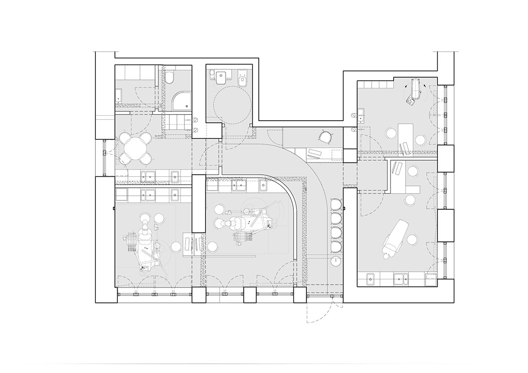
GABINETY STOMATOLOGICZNE w Olsztynie

Projekt: 2019 Projekt przebudowy gabinetów stomatologiczno - dermatologicznych w Olsztynie.