MIESZKANIE w Gdańsku
Projekt: 2019
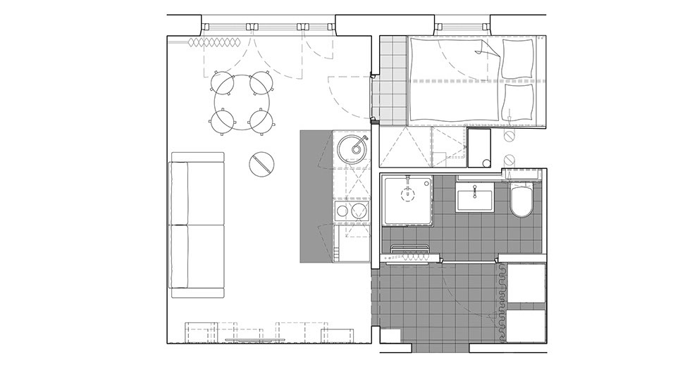
Realizacja: 2020 Projekt przebudowy kawalerki na mieszkanie dwupokojowe wraz z projektem wnętrz. Dzięki przeniesieniu kuchni do salonu, uzyskaliśmy małą sypialnię w miejscu niegdysiejszej kuchni.