MIESZKANIE SOLARIS / Tczew

Projekt: 2015
Realizacja: 2016

 

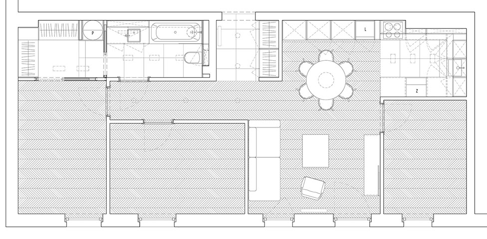
Mieszkanie o powierzchni ok. 70m2.
Projekt dla rodziny z dwójką małych dziewczynek.

Inwestorom zależało aby charakter wnętrz odpowiadał współczesnym trendom skonfrontowanym z ich upodobaniem do minimalizmu. Wykorzystanie naturalnych materiałów nadało wnętrzu przytulności.
Podłoga we wzór chevron to wizytówka mieszkania, spaja je w całość.